Khám phá kiến trúc độc đáo của ngôi biệt thự tân cổ điển chữ L A19049





Ngôi biệt thự tân cổ điển chữ L A19049 của gia đình Hợi ở Mê Linh, Hà Nội hiện đang nhận được nhiều sự quan tâm của khách hàng Atlantis. Đây là một trong số các công trình mà Atlantis đặt nhiều tâm huyết. Đem lại cho chủ nhà một không gian nhà ở sang trọng, độc đáo và tiện nghi nhất. Cùng với Atlantis khám phá kiến trúc ngôi biệt thự này dưới đây.
Thông tin cơ bản về biệt thự tân cổ điển chữ L A 19049
Dưới đây, Atlantis xin cung cấp một số thông tin cụ thể về mẫu biệt thự gia đình anh Hợi. Các bạn hãy theo dõi để nắm rõ các thông số kỹ thuật cơ bản.
- Chủ đầu tư: Anh Hợi.
- Địa điểm: Mê Linh, Hà Nội.
- Diện tích đất: 95m2/sàn.
- Diện tích xây dựng: 180m2;
- Phong cách thiết kế: Tân cổ điển chữ L.
- Số tầng: 3 tầng:
– Tầng 1: Phòng khách, phòng thờ và bếp ăn.
– Tầng 2: 2 phòng ngủ, 1 phòng sinh hoạt chung, wc chung.
– Tầng 3: 2 phòng ngủ, sân phơi.
- Đơn vị phụ trách: Công ty cổ phần kiến trúc Atlantis.

Khám phá kiến trúc độc đáo của ngôi biệt thự tân cổ điển chữ L A19049
Sau khi lắng nghe nguyện vọng về không gian, số tầng cũng như chi phí hiện có từ khách. Các kiến trúc sư Atlantis đã ngay lập tức phác thảo bản thiết kế biệt thự cho anh Hợi.
Phong cách biệt thự mà gia đình anh Hợi mong muốn có được là tân cổ điển. Toàn bộ các đường nét, hoa văn có trên tường nhà đều phải đảm bảo tỉ mỉ. Các chi tiết nhỏ cần phải trau chuốt một cách cẩn thận để đem lại vẻ đẹp hoàn mỹ.
Về kiến trúc bên ngoài biệt thự
Ngôi biệt thự tân cổ điển nhà anh Hợi được thiết kế 3 tầng, hình chữ L. Gam màu chủ đạo của ngôi nhà là màu vàng kem đậm để tạo ra sự trang nhã. Riêng hệ thống cột tường biệt thự được sơn màu trắng xen lẫn màu nâu đỏ của hệ thống cửa. Nhờ đó, tạo ra điểm nhấn màu sắc vừa nhẹ nhàng vừa ấm áp lại vừa nổi bật.
Ngôi biệt thự được thiết kế với các cột trụ có kích thước lớn, chạy dọc hết chiều cao ngôi nhà. Vừa tạo điểm nhấn riêng vừa hỗ trợ chống đỡ cho sức năng ngôi biệt thự. Biệt thự còn được các kiến trúc sư Atlantis thiết kế thêm khoảng sân ở trước nhà.
Đảm bảo, các thành viên trong gia đình có thể vui chơi, tổ chức party ngoài trời. Đồng thời, đảm bảo ngôi nhà đón nhận thêm các yếu tố tự nhiên vào bên trong như: Không khí, gió, ánh sáng,…

Về kiến trúc nội thất mỗi tầng
Nội thất bên trong của ngôi biệt thự tân cổ điển chữ L nhà anh Hợi vô cùng độc đáo. Mỗi tầng đều thể hiện được nét độc đáo về kiến trúc và ứng dụng các công năng nổi bật vào. Cụ thể:

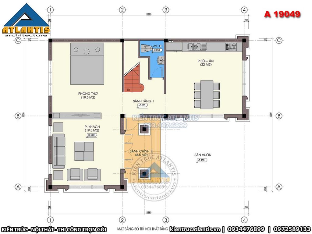
Tầng 1 biệt thự
Đây là tầng được chủ đầu tư và Atlantis đầu tư nhiều chất xám và tiền bạc nhất. Bao gồm 3 khu vực chính là: Phòng thờ, phòng khách và khu vực nhà bếp. Từ sảnh chỉnh đi vào chính là phòng khách ngôi nhà kết hợp với khu vực thờ cúng. Toàn bộ hoa văn, đường nét được chạm khắc tỉ mỉ, đậm nét tân cổ điển. Ngôi nhà trông bề thế và sang trọng hơn. Cuối cùng là phòng bếp với lối phụ đi ra sân vườn được bố trí hiện đại, rộng rãi.
Tầng 2 biệt thự
Tầng 2 của ngôi biệt nhà anh Hợi được thiết kế với 2 phòng ngủ, 1 phòng sinh hoạt chung. Và có thêm một khu vực nhà vệ sinh chung tại đây. Riêng phòng sinh hoạt chung dành khá nhiều diện tích để các thành viên sum họp. Cùng nhau ăn uống, xem tivi, chơi trò chơi để gắn kết tình cảm với nhau hơn.
Tầng 3 biệt thự
Tầng 3 ngôi biệt thự theo yêu cầu của anh Hợi, chúng tôi thiết kế 2 phòng ngủ, 1 sân phơi. Lý do thiết kế nhiều phòng ngủ là bởi anh Hợi muốn có 1-2 phòng ngủ dự bị. Đề phòng lễ Tết con cháu về chơi đông có thể ở lại qua đêm.
Tầng 3 được thiết kế thêm khu vực sân thượng khá thoáng mát, có mái che chắc chắn. Các thành viên có thể mang đồ đã giặt ra phơi ở phía sau. Điểm nhấn của ngôi biệt thự này còn ở hệ thống cầu thang. Chúng được thiết kế với kiểu dáng độc đáo, hoa văn chạm khắc tinh tế. Vừa làm nổi bật phong cách nội thất tân cổ điển. Vừa đảm bảo giá trị thẩm mỹ và sự bền đẹp cho không gian nhà ở.

Vừa rồi Atlantis đã cùng với các bạn đi khám phá xong kiến trúc độc đáo của ngôi biệt thự tân cổ điển chữ L A19049. Nếu còn điều gì thắc mắc, liên hệ ngay cho chúng tôi theo địa chỉ dưới đây. Các chuyên gia của chúng tôi sẽ tư vấn cụ thể để các bạn tham khảo.
Công ty Cổ phần Kiến trúc Atlantis
- Địa chỉ: số 07 Đại Lộ Thăng Long, P. Trung Hòa, Q. Cầu Giấy, TP. Hà Nội.
- Hotline: 093.447.6899 – 0972.589.133.
- Mail: kientrucatlantis@gmailcom.
- Fanpage: Công ty CP Kiến trúc Atlantis.
Đăng ký thiết kế
- Địa chỉ: Mê Linh, Hà Nội
- Diện tích: 95m2/sàn






